Udearealer ved D-boligerne
Her på siden kan du se tegninger af udearealerne, som de kommer til at se ud omkring D-boligerne efter renoveringen.
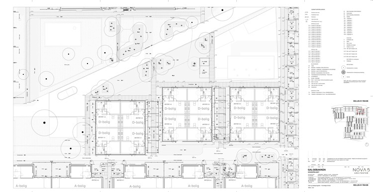
På oversigten her kan du se, hvor D1-boligerne og de nye D2-boliger vil komme til at ligge i Galgebakken.
Her på siden kan du se tegninger af udearealerne, som de kommer til at se ud omkring D-boligerne efter renoveringen.
På oversigten her kan du se, hvor D1-boligerne og de nye D2-boliger vil komme til at ligge i Galgebakken.
Der indrettes 12 D2-boliger i Øster. I forbindelse med helhedsplanen etableres der niveaufri adgang til D2-boligerne. Hvor det er muligt etableres udgang til grønt opholdsareal fra stue/alrum.
Planen er her vist med en sti, der følger den oprindelige placering på strædet mellem D-husene.
I Skrænt indrettes der fire D2-boliger. I forbindelse med helhedsplanen etableres der niveaufri adgang til D2-boligerne. Hvor det er muligt etableres udgang til grønt opholdsareal fra stue/alrum.
Planen er her vist med en centreret sti, der giver en mere lige fordeling af grønne friarealer til beboerne på begge sider af strædet.
Herunder finder du tegninger af skure til boligtype D.
Ovenfor kan du downloade tegningen af skuret, hvis du har behov for at se nærmere på det i højere opløsning.